Compare properties

Compare

No properties found to compare.

PREISREDUZIERUNG! Großzügiges Stadthaus mit Garten im Neusser-Dreikönigenviertel

41464 Neuss, Reihenmittelhaus zum Kauf

Wohnfläche: 185,64 m²
Zimmer: 4
Objekt-Typ: Haus, Reihenmittelhaus
Baujahr: 1911
499.000 EUR
Verkauf
Objekt-ID: 6654
Ergebnis 2 von 16
Objektdaten
Property bedroom icon Zimmer: 4
Property Size icon Wohnfläche: 185,64 m²
Property Garage Size icon Nutzfläche: 61,69 m²
Property bedroom icon Grundstücksfläche: 400 m²
Property bedroom icon Typ: Haus, Reihenmittelhaus
Property bedroom icon Heizungsart: Zentralheizung
Property bedroom icon Zustand: gepflegt
Property bedroom icon Ausstattung: Standard
Kosten
Property bedroom icon Kaufpreis: 499.000 EUR
Property bedroom icon Provision: 3,57 % zzgl. MwSt.
Ausstattung / Merkmale
Kamin
Keller
Massivbauweise
Separates WC
Wintergarten
Energieausweis
Energieausweistyp Bedarfs­ausweis
Gültig bis 01.04.2035
Gebäudeart Wohngebäude
Baujahr lt. Energieausweis 2010
Primärenergieträger Gas
Endenergie­bedarf 225,80 kWh/(m²·a)
Energie­effizienz­klasse G
0 25 50 75 100 125 150 175 200 225 250+ H G F E D C B A A+ H G F E D C B A A+ Endenergiebedarf 225,80 kWh/(m²·a)
Objekt­beschreibung
Beschreibung

Dieses charmante Stadthaus aus dem Jahr 1910 befindet sich in einer der begehrten Wohnlagen von Neuss – dem familienfreundlichen Dreikönigenviertel. Die Immobilie wurde 1973 und 1996 durchdacht um- und angebaut und überzeugt heute mit einer gelungenen Kombination aus modernem Grundriss und zeitgemäßem Wohnkomfort.

Der repräsentative Eingangsbereich mit Diele und Garderobennische im Treppenhaus vermittelt ein großzügiges Wohngefühl.

Im Erdgeschoss erwartet Sie ein weitläufiger Wohn- und Essbereich mit offener Küche, der fließend in den großzügigen Wintergarten übergeht. Von hier aus haben Sie direkten Zugang in den liebevoll angelegten und pflegeleichten Garten.

Das Obergeschoss bietet eine Diele, ein Zimmer, ein modernisiertes Dusch- und Wannenbad sowie ein geräumiges Schlafzimmer.

Das ausgebaute Dachgeschoss überrascht mit einem großen Studio, ausgestattet mit eigener kleiner Küche und WC – ideal als Jugendzimmer, Homeoffice oder Gästebereich.

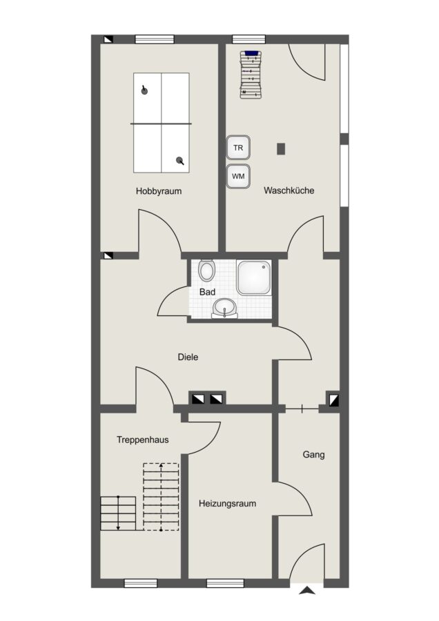
Im voll unterkellerten Untergeschoss befinden sich eine zentrale Diele, der Heizungsraum, einen Hobbyraum, eine Waschküche sowie ein jeweils zusätzlicher Ausgang mit Zugang zum Garten und zur Straße – besonders praktisch für Fahrräder und Mülltonnen. Des Weiteren steht Ihnen hier ein Badezimmer mit WC, Waschbecken und Dusche mit Glasabtrennung zur Verfügung.

Abgerundet wird das attraktive Gesamtbild durch einen überdachten Freisitz am Ende des Grundstücks, der vielseitig genutzt werden kann.

Die Gas-Zentralheizung wurde im Jahr 2008 erneuert. Die straßenseitigen Fenster sind doppelverglaste Holzfenster aus dem Jahr 1978, die rückseitigen Fenster sind noch einfachverglast. Die auf den Bildern abgebildete Einbauküche befindet sich nicht mehr im Haus, diese wurde bereits ausgebaut.

Lage
Google Maps

Mit dem Laden der Karte akzeptieren Sie die Datenschutzerklärung von Google.
Mehr erfahren

Karte laden

Die dargestellte Position der Immobilie ist nur eine ungefähre Angabe.

Das Dreikönigenviertel gewinnt durch seine gute Infrastruktur. Einkaufsläden, Lebensmittelläden, Bäcker, Banken, Ärzte und Apotheken sind fußläufig zu erreichen.

Sie finden in unmittelbarer Nähe ein Schulzentrum mit zwei Gymnasien, einer Real- und Hauptschule sowie einer Grundschule und einen Kindergarten für die Kleinen.

Zudem liegt der schöne Stadtgarten, der zu langen Spaziergängen einlädt, in direkter Nachbarschaft. In der Innenstadt bieten sich Freizeitmöglichkeiten aller Art für Jung und Alt. In der Innenstadt finden Sie eine Galopprennbahn, zahlreiche Sportvereine und insgesamt drei Schwimmbäder.

Der öffentliche Personennahverkehr bietet hohe Flexibilität. Über die S-Bahn Haltestelle Neuss-Süd gelangen Sie in 5 Minuten zum Neusser Hauptbahnhof, von dem aus Sie mit der S-Bahn problemlos die Städte Düsseldorf, Mönchengladbach und Köln erreichen. Die Neusser Innenstadt ist fußläufig in 10 Minuten und mit dem Bus in 5 Minuten zu erreichen. Die Autobahnkreuze Neuss-Süd/ Neuss-West sind in 3 Autominuten erreichbar.

Kindergarten 380 m | Grundschule 300 m | Hauptschule 4,17 km | Realschule 340 m | Gymnasium 360 m | Flughafen 12,21 km | Fernbahnhof 80 m | Autobahn 920 m | U/S-Bahn 1,95 km | Zentrum 1,31 km | Bus 130 m | Einkaufsmöglichkeiten 1,54 km | Gaststätten 480 m 

Immobiliendaten-Import und Darstellung für WordPress: WP-ImmoMakler®