Compare properties

Compare

No properties found to compare.

Neubauprojekt Jülicher Landstraße mit 18 Mietwohnungen und 5 Gewerbeeinheiten

41464 Neuss, Etagenwohnung zur Miete

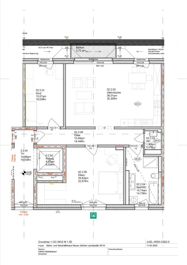
Wohnfläche: 102,84 m²
Zimmer: 3
Objekt-Typ: Etagenwohnung, Wohnung
Baujahr: 2025
1.543,00 EUR
Vermietung
Objekt-ID: 6660-14
Objektdaten
Property bedroom icon Zimmer: 3
Property Size icon Wohnfläche: 102,84 m²
Property bedroom icon Etage: 1
Property bedroom icon Bezugsfrei ab: 01.06.2026
Property bedroom icon Stellplätze: 1
Property bedroom icon Typ: Etagenwohnung, Wohnung
Property bedroom icon Zustand: neuwertig
Property bedroom icon Balkone: 1
Kosten
Property bedroom icon Kaltmiete: 1.543,00 EUR
Property bedroom icon Kaution: 4.629,00 EUR
Ausstattung / Merkmale
Balkon
Personenaufzug
Separates WC
Energieausweis
Energieausweistyp Bedarfs­ausweis
Gültig bis 15.01.2036
Gebäudeart Wohngebäude
Baujahr lt. Energieausweis 2025
Primärenergieträger KWK_ERNEUERBAR
Endenergie­bedarf 26,00 kWh/(m²·a)
Energie­effizienz­klasse A+
0 25 50 75 100 125 150 175 200 225 250+ H G F E D C B A A+ H G F E D C B A A+ Endenergiebedarf 26,00 kWh/(m²·a)
Objekt­beschreibung
Beschreibung

Auf der Jülicher Landstraße entstehen in einem Neubauprojekt 18 hochwertige Mietwohnungen und 5 großzügige Gewerbeeinheiten in einem gewachsenen Wohnbaugebiet von Ein- und Mehrfamilienhäusern. Alle Wohnungen sind durchdacht gestaltet. Das erste bis dritte (Dachgeschoss) Obergeschoss verfügen jeweils über 6 Wohnungen.

Die Größe und die Zuschnitte der modernen Wohnungen und Gewerbeeinheiten bieten ein vortreffliches Lebensgefühl. Gleichzeitig liegt das Zentrum von Neuss mit seiner lebendigen Infrastruktur nur 5 Fahrminuten entfernt.

Bezugsfertig sind die Wohnungen und Gewerbeeinheiten ab Mai 2026.

Ausstattung

- Fußbodenheizung mit Einzelraumregelung
- Zentrale Warmwasseraufbereitung für Bad, Gäste-WC und Küche
- Sämtlich Maler- und Lackierarbeiten
- 3-fach Verglasung aller Fensteranlagen, mit Dreh-Kipp Funktion, außer Keller
- Elektrische Rollläden in den Wohnungen
- Video-/Klingel-/Gegensprechanlage mit Türöffner
- Verkabelung für Telefon, TV/Radio und Internet
- Parkettboden in Wohn- und Schlafraum
- Bad mit Fliesen und gefliestem Sockel, Dusch mit Glasabtrennung
- Handtuchtrockner im Bad
- Balkon mit Oberbelag aus Terrassenfliesen
- Balkongeländer aus Edelstahlkonstruktionen (feuerverzinkt, pulverbeschichtet, RAL 7016)
- Abstellplatz für Fahrräder in der Tiefgarage und auf dem Grundstück

Lage
Google Maps

Mit dem Laden der Karte akzeptieren Sie die Datenschutzerklärung von Google.
Mehr erfahren

Karte laden

Die dargestellte Position der Immobilie ist nur eine ungefähre Angabe.

Das Objekt befindet sich im Neusser Dreikönigenviertel, einem etablierten und vielseitig genutzten Stadtteil mit einer ausgewogenen Mischung aus Wohnen, Dienstleistung und Gewerbe. Innerhalb dieses Quartiers stellt das Gewerbegebiet Moselstraße einen bedeutenden Wirtschaftsstandort dar, der sich durch eine funktionale Struktur und eine hohe Standortqualität auszeichnet.

Die Lage überzeugt insbesondere durch ihre ausgezeichnete verkehrliche Anbindung. Über die nahegelegenen Autobahnen A46, A52 und A57 bestehen schnelle Verbindungen in die umliegenden Wirtschaftsmetropolen Düsseldorf, Köln und Mönchengladbach sowie in das gesamte Rhein-Ruhr-Gebiet. Auch der Neusser Hafen und weitere logistisch relevante Standorte sind in kurzer Fahrzeit erreichbar.

Das Gewerbegebiet Moselstraße ist geprägt von mittelständischen Unternehmen, Handwerksbetrieben sowie Dienstleistungs- und Logistiknutzungen. Die Umgebung bietet eine gut ausgebaute Infrastruktur mit Einkaufsmöglichkeiten, gastronomischen Angeboten und ergänzenden Serviceeinrichtungen. Der öffentliche Personennahverkehr ist fußläufig erreichbar und gewährleistet eine komfortable Anbindung für Mitarbeiter und Besucher.

Das Stadtzentrum von Neuss liegt nur wenige Minuten entfernt und ergänzt den Standort durch ein vielfältiges Angebot an Einzelhandel, Verwaltung, Bildungseinrichtungen und Freizeitmöglichkeiten. Insgesamt bietet die Lage eine ideale Kombination aus wirtschaftlicher Funktionalität, urbaner Nähe und regionaler Vernetzung, wodurch sie sich hervorragend für gewerbliche Nutzungen unterschiedlicher Art eignet.

Kindergarten 610 m | Grundschule 560 m | Hauptschule 4,63 km | Realschule 700 m | Gymnasium 790 m | Flughafen 12,22 km | Fernbahnhof 480 m | Autobahn 1,09 km | U/S-Bahn 1,70 km | Zentrum 1,21 km | Bus 140 m | Einkaufsmöglichkeiten 1,39 km | Gaststätten 140 m 

Immobiliendaten-Import und Darstellung für WordPress: WP-ImmoMakler®